根据《急救中心建设标准》第二十九条规定:急救中心调度室的供电设施应安全、可靠、稳定、不间断。为达到此要求,指挥中心拟采购50KW柴油发电机一台(上柴股份)。为了确保项目顺利实施,指挥中心就征集柴油发动机工程项目单位有关事项公告如下,欢迎符合资格的公司积极参与。
一、项目名称及施工内容
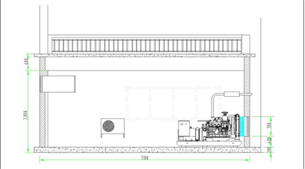
(一)项目名称:江门市紧急医疗救援指挥中心50KW柴油发电机安装及机房安装工程。
(二)柴油发电机品牌:上柴股份
(三)施工内容:指挥中心的发电机安装工程,机房土建工程,吸音,隔音系统,进风排风系统,排烟系统。
(四)施工场地:指挥中心指定场地。
二、施工资质
(一)投标人必须是中国境内注册的独立法人(包括企、事业法人)或者其他组织,投标时提交有效的营业执照(或事业法人登记证等相关证明)副本复印件。
(二)有依法缴纳税收和社会保障资金的良好记录。(2020年5月~11月内依法缴纳税收和社会保障资金的相关材料。如依法免税或不需要缴纳社会保障资金的,提供相应证明材料)
(三)具备履行合同所必需的设备和专业技术能力。
(四)具有有效的《安全生产许可证》;
(五)前3年内在经营活动中没有重大违法记录(请提供在“信用中国”上的相关证明截图,并加盖公章
三、费用预算
工程总费用不超过11万元。
四、施工要求(详见附件)
五、施工时间
签订施工合同后五天内动工,工期不超过三十个工作日(如遇不可抗力因素,经协商可适当延期)。
六、报名方式
有意参与的单位请将报名材料及联系方式送指挥中心急救业务科(联系人:唐志均,电话:15819780694)。
报名时应提交以下材料(一式4份):
(一)符合施工资质的有关证书复印件(加盖单位公章);
(二)工程项目报价(加盖单位公章);
(三)承办此类建设项目的证明资料。
(四)工程设计方案,实施方案,完善的实施方法
(五)售后服务承诺
(六)参与项目人员具有相关的合格证书,以确保项目质量。(请提供人员名单并加盖公章)
报名时间为2020年12月31日-2021年1月7日(五个工作日),截止后不再受理其他报名。
七、施工单位确定
我中心将组织有关人员和专家对报名单位进行遴选,报名单位届时须派代表参加遴选会,并在会上对施工方案进行解释。
特此公告。
附件:发电机房工程清单及平面图
江门市紧急医疗救援指挥中心
2020年12月30日
附件
发电机房工程清单
工程平面图


江门市政府门户网站

粤公网安备 44070302000670

